MEP Designer




Service Description
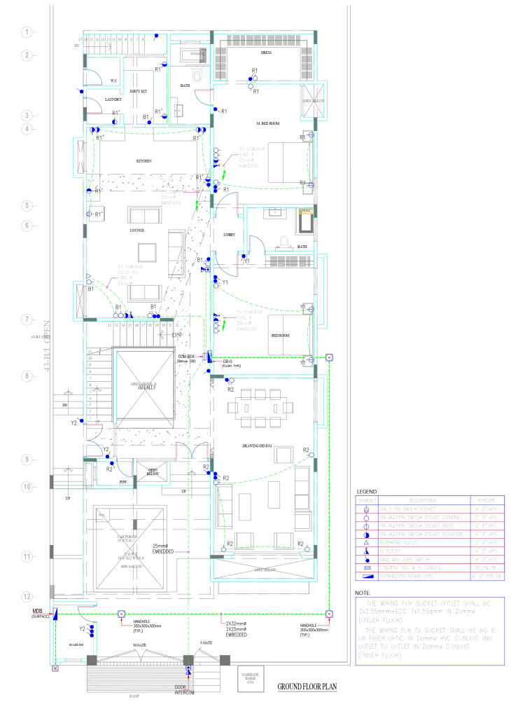
I am a professional MEP Designer with strong expertise in electrical power and lighting system design. I deliver technically sound, practical, and code-compliant solutions for residential and commercial projects.
My uploaded samples, including power layouts and detailed legends, reflect my drafting accuracy, clarity, and professional presentation standards. I focus on proper load distribution, panel sizing, circuit planning, and energy-efficient design to ensure safe and reliable systems.
Every project is handled with a consultant mindset — understanding requirements first, then delivering optimized and well-structured electrical solutions.
Feel free to share your project details. I look forward to providing you with a professional and dependable service.
Technology Used
AutoCAD (2D) for precise electrical design, power distribution layouts, lighting systems, and technical drawing documentation.
Frequently Asked Questions
Q1: What do you need to start the project?
A: I need architectural layout (PDF/DWG), project type, and basic requirements.
Q2: Do you provide complete electrical and lighting layouts?
A: Yes, I provide detailed power, lighting, and SLD drawings in AutoCAD.
Share This Service



-Model_page-0001.jpg)

